
MIL-PRF-62411/1A(AT)
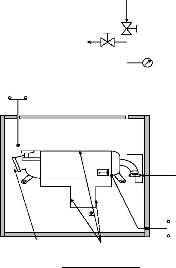
P R E S S U R E SOURCE.
N O T E : PROOF PRESSURE MAY BE PNEUMATIC OR
HYDROSTATIC.
BURST PRESSURE SHALL BE PNEUMATIC.
S H U T O F F VALVE (TYP)
VENT
P R E S S U R E GAGE
CHAMBER
TEMPERATURE
THERMOCOUPLE
S A F E T Y CHAMBER
( O V E N FOR BURST
PRESSURE TEST)
B L E E D PORT
C A P P E D AND
C O N N E C T E D TO
PRESSURE SOURCE
UNIT
TEMPERATURE
THERMOCOUPLE
( B U R S T TEST
ONLY)
F A N AIR
B L E E D PORT
PASSAGES OPEN
CAPPED
A-56052
FIGURE 5. Proof and burst pressure test setup.
8
For Parts Inquires call Parts Hangar, Inc (727) 493-0744
© Copyright 2015 Integrated Publishing, Inc.
A Service Disabled Veteran Owned Small Business